Nave oficinas Gran Via Asima

  • 6,000€
En alquiler
Nave oficinas Gran Via Asima
  • 6,000€

Descripción

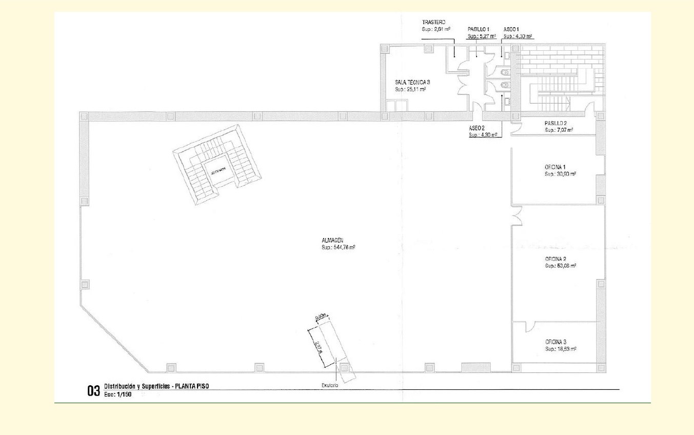
– Nave situada en primera planta, en la calle principal del Polígono Son Castelló, con 47 metros  de fachada a esa calle.
– Superficie construida planta primera 790 m2 aprox.
– Dispone de todos los servicios (aseos, vestuarios, zona de exposición, etc).
– Amplio escaparate acristalado.
– Ascensor interior para discapacitados.
– Aire acondicionado.
– Placas de energía solar fotovoltaica.
– Con licencia de actividad y proyecto de protección contra incendios.
Precio alquiler: 6.000 €/mes + IVA
• Contrato con una duración de 10 años, prorrogables, con un obligado cumplimiento de 2 años.
• Fianza de 2 meses + 5 de garantía adicional, mediante depósito o aval bancario (negociable).
. Un mes de honorarios
  • 791 m² construidos, 790 m² útiles
  • Segunda mano/buen estado
  • Distribución 2 estancias
  • 2 aseos o baños
  • Situado en planta superior
  • Aire acondicionado
  • Sistema de alarma
  • Tiene oficina
  • Puerta de seguridad

Detalles

  • ID: NOU432
  • Precio: 6,000€
  • Tamaño: 790 m²
  • Baños: 2
  • Tipo propiedad: Local, Nave
  • Estado propiedad: En alquiler

Características

Clasificación energética

Pendiente
  • A+
  • A
  • B
  • C
  • D
  • E
  • F
  • G
  • H

Nota legal

Nou Espai
  • Nou Espai

Solicitar información propiedad

Propiedades similares

Comparar listados

Comparar
Nou Espai
  • Nou Espai